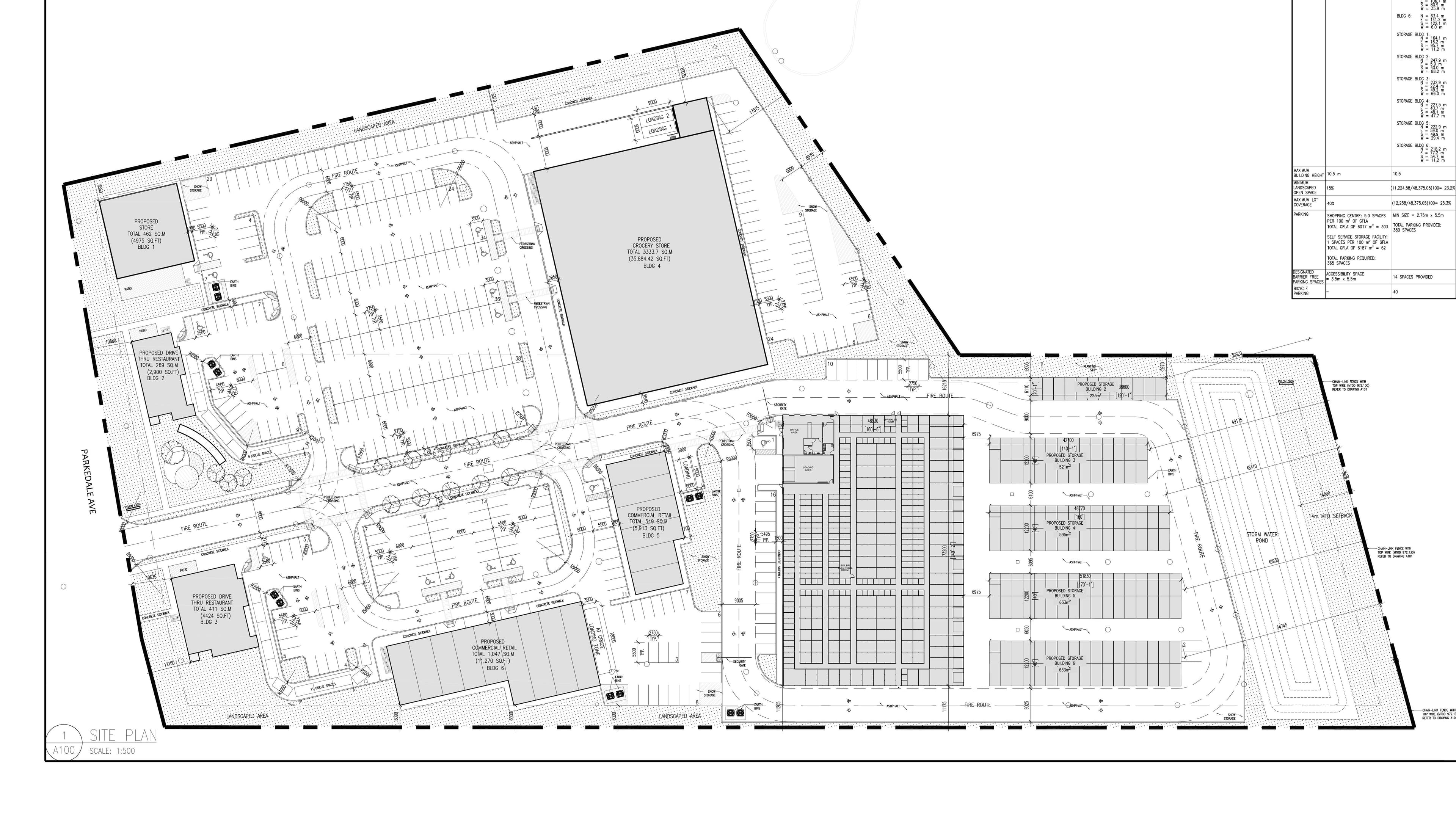
Overview
The Brockville project at 3087 Parkdale Avenue is a mixed-use development opportunity combining a purpose-built self-storage facility with complementary commercial components including a Tim Hortons and car wash. The project has advanced through extensive due diligence including geotechnical and archaeological assessments, traffic studies, and full architectural drawings. The operating entity is Parkedale Brockville Investments Inc.
Development Components
Self-StorageCar WashCRUGrocery StoreCommercial Uses Available
Key Facts
- Address
- Parkdale Avenue, Brockville, ON
- Status
- Under Development
- Storage Space
- 66,000 sq ft
- Site Area
- 12.4 acres
Renderings & Site Plan


Location
Commercial Leasing
Commercial space available at this location.
This development includes commercial leasing opportunities. For leasing inquiries, please contact Deerfield Brokerage directly.
Get In Touch