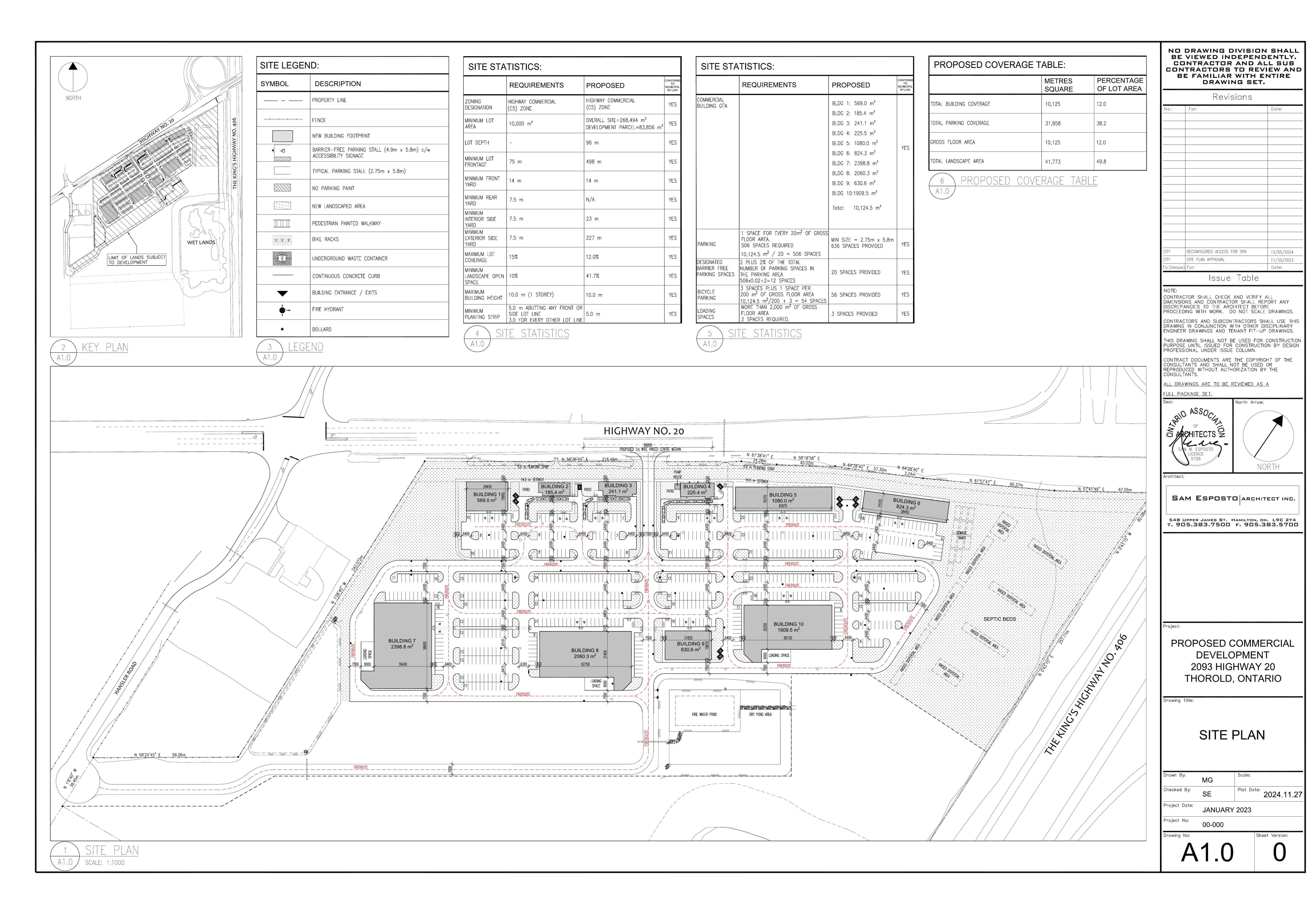
Overview
The Thorold, Ontario property represents a strategic land position currently utilized for active farming operations. The property has been evaluated for future development potential including self-storage and a car wash component, with site plan approval submissions initiated. Legal, environmental, and traffic study work has been completed, establishing a solid foundation for future development activity.
Development Components
Self-StorageCar WashCRUGrocery StoreCommercial Uses Available
Key Facts
- Location
- Thorold, ON
- Status
- Under Development
- Storage Space
- 66,000 sq ft
- Site Area
- 65 acres
Renderings & Site Plan


Location
Commercial Leasing
Commercial space available at this location.
This development includes commercial leasing opportunities. For leasing inquiries, please contact Deerfield Brokerage directly.
Get In Touch