Overview
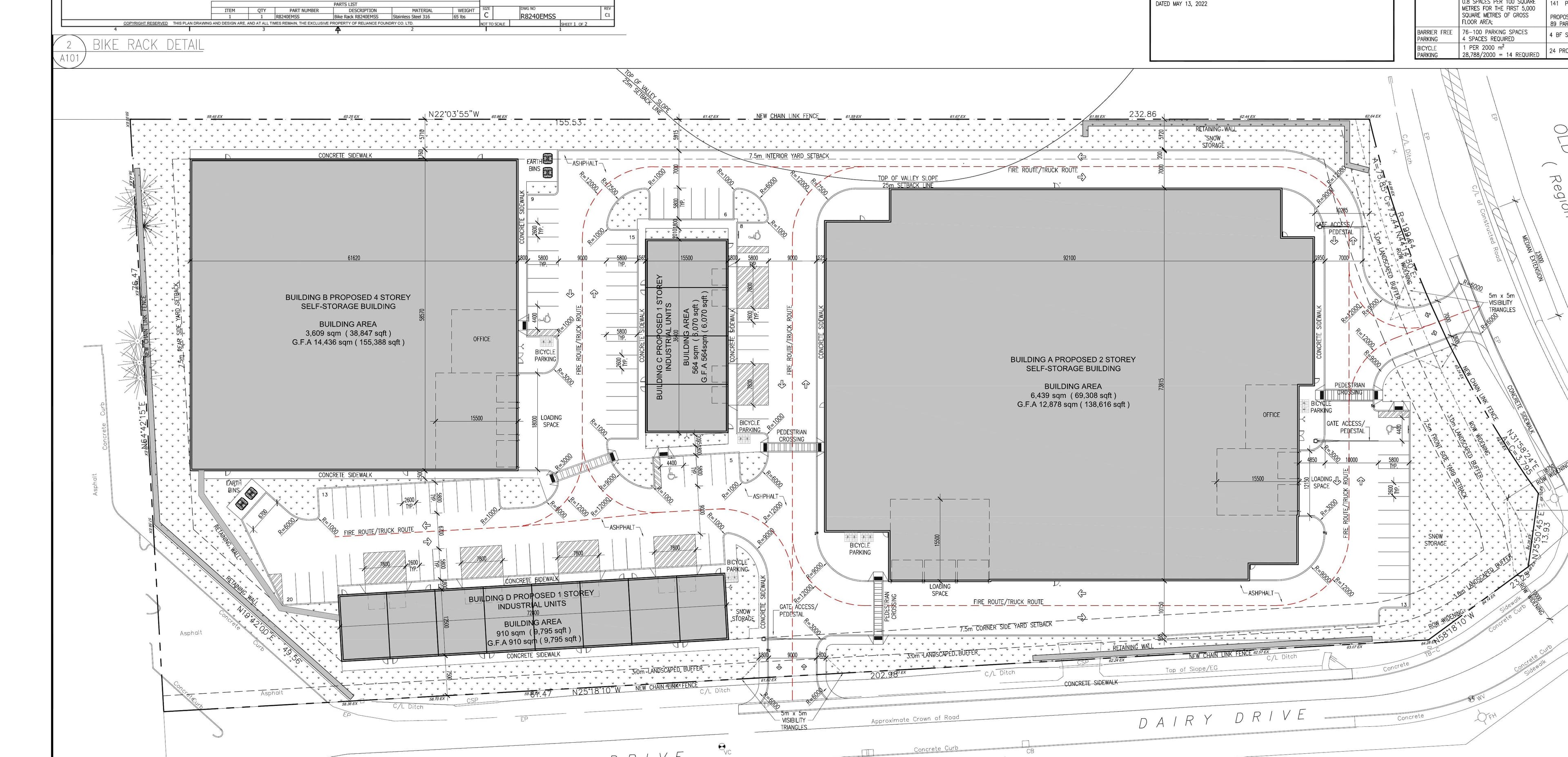
The Dairy Drive project in Orleans represents a compelling development opportunity in one of Ottawa's fastest-growing suburban communities. The project has been advanced through site plan approval submissions, environmental and engineering assessments, and a comprehensive financing package. Engineering services are provided by Arcadis, a globally recognized engineering and consulting firm.
Development Components
Self-StorageCar WashCRUCommercial Uses Available
Key Facts
- Location
- Orleans (Ottawa), ON
- Status
- Under Development
- Storage Space
- 155,388 sq ft
- Site Area
- 6.2 acres
Renderings & Site Plan


Location
Commercial Leasing
Commercial space available at this location.
This development includes commercial leasing opportunities. For leasing inquiries, please contact Deerfield Brokerage directly.
Get In Touch